Hightech-Fertighaus – Modell Frankfurt
Price
ANMELDEN / REGISTRIEREN, UM PREISE ANSEHEN REGISTRIEREN, UM PREISE ANSEHENDetails
4
ZIMMER
ZIMMER
3
BADEZIMMER
BADEZIMMER
2
ETAGEN
ETAGEN
305
m2
m2
Bauart: High-Tech
Typologie: E-Form
Volumetrie: L-förmiges Design
Informationen
Das Modell Frankfurt ist ein Haus im zeitgenössischen Stil mit einem räumlichen Reichtum in all seinen Zimmern. Ausgeprägte Linien kennzeichnen das Frankfurter Design und verleihen ihm einen modernen und dynamischen Charakter.
Das zweistöckige Haus verfügt über einen großen Aufenthaltsbereich im Erdgeschoss, wo sich Funktionalität und Raum im Laufe des Tages je nach Bedarf verändern und anpassen. Unabhängige Räume im Wohnzimmer, Esszimmer und in der Küche, die jedoch visuell miteinander verbunden sind, um ein größeres Raumgefühl zu schaffen. Im Erdgeschoss befindet sich ein großes Hauptschlafzimmer mit eigenem Ankleidezimmer und einem geräumigen Bad, das alle Erwartungen erfüllt.
Das Nachtprogramm des Hauses wird im ersten Stock mit drei großen Schlafzimmern und einem Badezimmer vervollständigt.
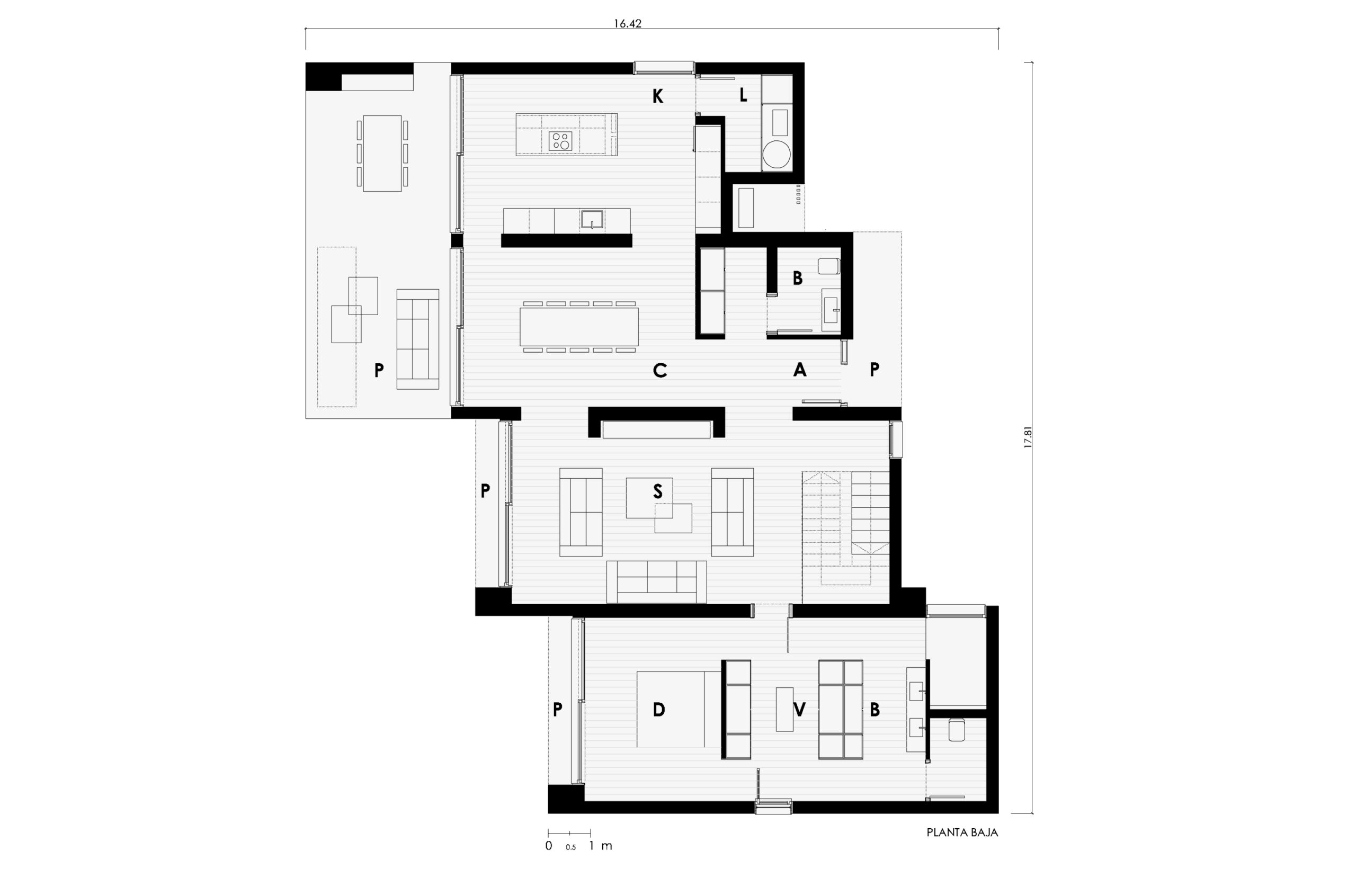
Planzeichnung
Erdgeschoss

Obergeschoss

GESAMTE NUTZFLÄCHE | 258,94 m2 |
HAUS | 209,98 m2 |
Überdachte Fläche Aussenbereich | 48,96 m2 |
ERDGESCHOSS | |
HAUS | 138,43 m2 |
Eingangsbereich-Treppe | 12,70 m2 |
Wohnzimmer | 39,35 m2 |
Esszimmer | 20,00 m2 |
Küche | 20,85 m2 |
Waschraum | 4,50 m2 |
Toilette | 3,00 m2 |
Hauptschlafzimmer | 13,93 m2 |
Hauptankleideraum | 12,60 m2 |
Hauptbadezimmer | 11,50 m2 |
Überdachte Fläche Aussenbereich | 33,26 m2 |
Veranda Eingangsbereich | 3,96 m2 |
Veranda Wohn- und Esszimmer | 29,30 m2 |
OBERGESCHOSS | |
HAUS | 71,55 m2 |
Verteilungsraum-Treppe | 15,55 m2 |
Badezimmer | 4,80 m2 |
Schlafzimmer 01 | 12,60 m2 |
Schlafzimmer 02 | 19,30 m2 |
Schlafzimmer 03 | 19,30 m2 |
Überdachte Fläche Aussenbereich | 15,70 m2 |
Veranda | 15,70 m2 |
GESAMT BEBAUTE FLÄCHE | 304,53 m2 |
HAUS | 251,59 m2 |
Überdachte Fläche Aussenbereich | 52,94 m2 |
ERDGESCHOSS | |
Nutzfläche (NUF) | 165,60 m2 |
Überdachte Fläche | 37,25 m2 |
OBERGESCHOSS | |
Nutzfläche (NUF) | 85,99 m2 |
Überdachte Fläche | 15,69 m2 |
Verwandte Hausmodelle

Hochwertiges mediterranes Haus – Modell München
4
Zimmer
Zimmer
3
Badezimmer
Badezimmer
309
m2
m2
Bitte registrieren Sie sich um die Preise zu sehen

Modernes Fertighaus – Modell Leipzig
4
Zimmer
Zimmer
4
Badezimmer
Badezimmer
277
m2
m2
Bitte registrieren Sie sich um die Preise zu sehen

Modernes Luxushaus – Modell Westhafen
4
Zimmer
Zimmer
4
Badezimmer
Badezimmer
283
m2
m2
Bitte registrieren Sie sich um die Preise zu sehen