Hochwertiges mediterranes Haus – Modell München
Price
ANMELDEN / REGISTRIEREN, UM PREISE ANSEHEN REGISTRIEREN, UM PREISE ANSEHENDetails
ZIMMER
BADEZIMMER
ETAGEN
m2
Informationen
Ein Designhaus, das mit dem EMOHA-System gebaut wurde und die Stärke von Beton mit der Vielseitigkeit von offenen Räumen kombiniert. Auf zwei Etagen wird Ihr zukünftiges Zuhause den höchsten Ansprüchen an Design, Raumqualität und Ausstattung gerecht.
Die grafischen Linien der Fassade dieses modularen Hausmodells erzeugen eine gewundene Figur, die für ein modernes und zeitloses Haus charakteristisch ist.
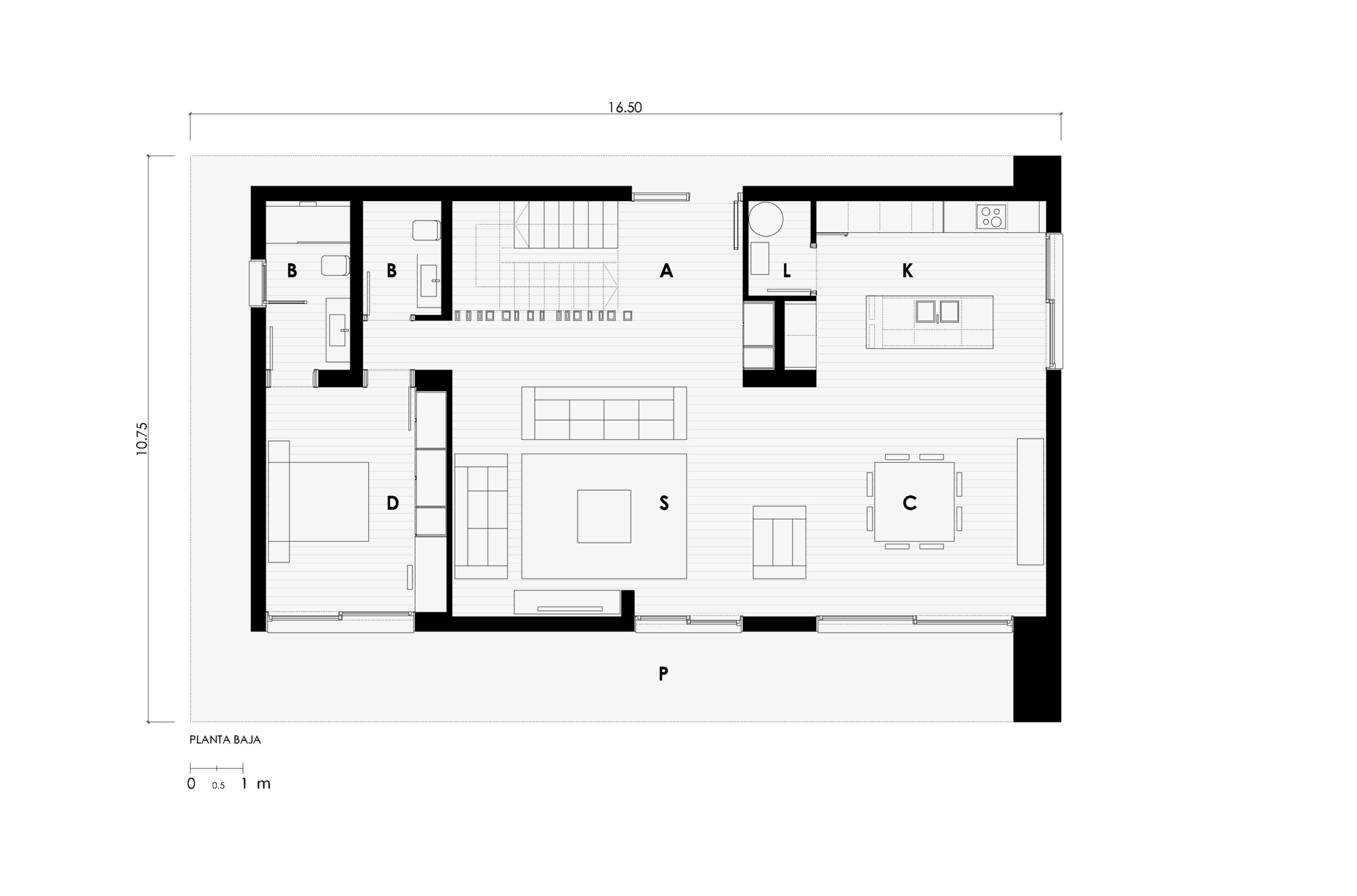
Das hochwertige Haus München verfügt über einen großen Wohnbereich, bestehend aus einem Wohnzimmer, einem Esszimmer und einer Küche, die sich zum Garten hin öffnet. Das Erdgeschossprogramm wird durch ein angenehmes Schlafzimmer mit Ankleideraum, ein geräumiges und komplettes Badezimmer sowie einen Abstellraum vervollständigt. Die Größe und Organisation dieses Hauses ermöglichen eine funktionale und räumliche Vielseitigkeit.
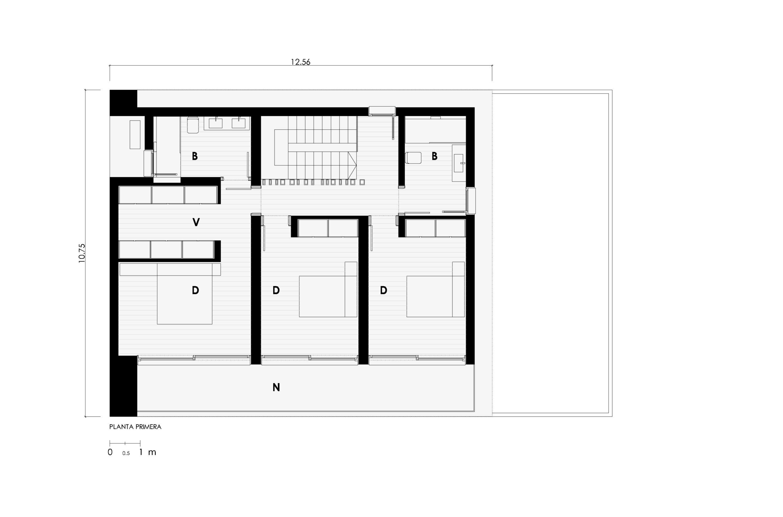
Im Obergeschoss befindet sich der Schlafbereich mit einem Hauptschlafzimmer mit Ankleideraum und eigenem Bad sowie zwei Schlafzimmern, die sich ein Bad teilen. Jedes Zimmer ist mit Einbauschränken ausgestattet und verfügt über große, deckenhohe Fenster, die viel natürliches Licht und einen schönen Blick auf den Garten bieten. Eine große Veranda verbindet die Schlafzimmer miteinander und ermöglicht eine Erweiterung der Räume nach außen.
Planzeichnung
Erdgeschoss

Obergeschoss

GESAMTE NUTZFLÄCHE | 270,85 m2 |
HAUS | 189,54 m2 |
Überdachte Fläche Aussenbereich | 81,31 m2 |
ERDGESCHOSS | |
HAUS | 104,37 m2 |
Eingangsbereich-Treppe | 12,38 m2 |
Wohn- und Esszimmer | 49,82 m2 |
Küche | 12,92 m2 |
Waschraum | 6,70 m2 |
Badezimmer 01 | 6,05 m2 |
Ankleideraum 01 | 5,00 m2 |
Schlafzimmer 01 | 11,50 m2 |
Überdachte Fläche Aussenbereich | 50,19 m2 |
Veranda 01 | 50,19 m2 |
OBERGESCHOSS | |
HAUS | 85,17 m2 |
Verteilungsraum-Treppe | 14,64 m2 |
Badezimmer 02 | 4,58 m2 |
Schlafzimmer 02 | 19,67 m2 |
Schlafzimmer 03 | 13,33 m2 |
Hauptschlafzimmer | 15,56 m2 |
Hauptankleideraum | 9,22 m2 |
Hauptbadezimmer | 8,17 m2 |
Überdachte Fläche Aussenbereich | 31,12 m2 |
Veranda 02 | 31,12 m2 |
GESAMT BEBAUTE FLÄCHE | 308,62 m2 |
HAUS | 227,31 m2 |
Überdachte Fläche Aussenbereich | 81,31 m2 |
ERDGESCHOSS | |
Nutzfläche (NUF) | 121,71 m2 |
Überdachte Fläche | 50,19 m2 |
OBERGESCHOSS | |
Nutzfläche (NUF) | 105,60 m2 |
Überdachte Fläche | 31,12 m2 |
Verwandte Hausmodelle

Modernes Fertighaus – Modell Leipzig
Zimmer
Badezimmer
m2

Modernes Luxushaus – Modell Westhafen
Zimmer
Badezimmer
m2

Hightech-Fertighaus – Modell Frankfurt
Zimmer
Badezimmer
m2